编号: 5874

在馬薩納中心購買的獨家別墅

Andorra - La Massana | 别墅-楼房

500 m2
睡房
4
浴室
3
价格
3.160.000 €

索取有关的更多信息 在馬薩納中心購買的獨家別墅

编号: 5874

| 5874

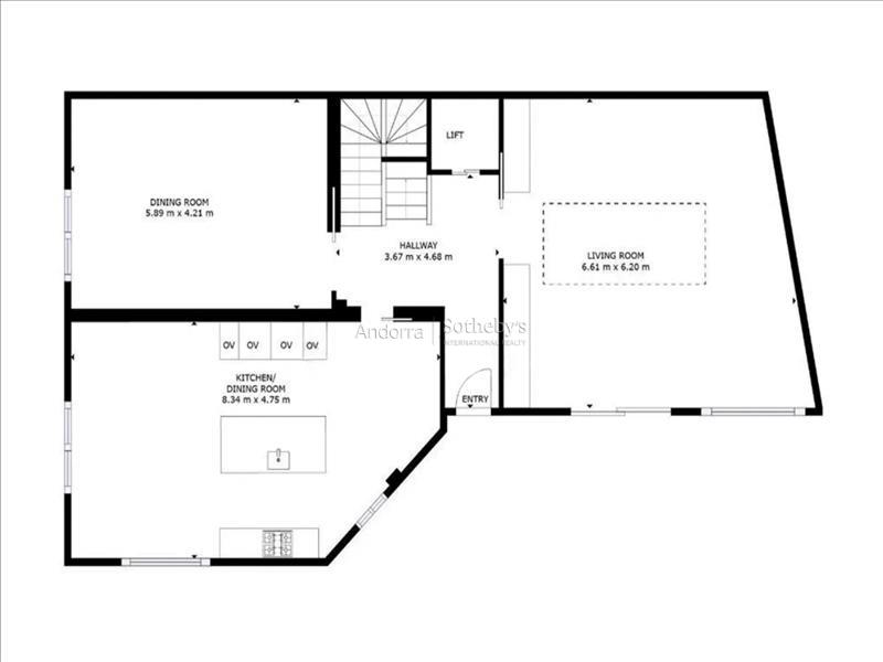
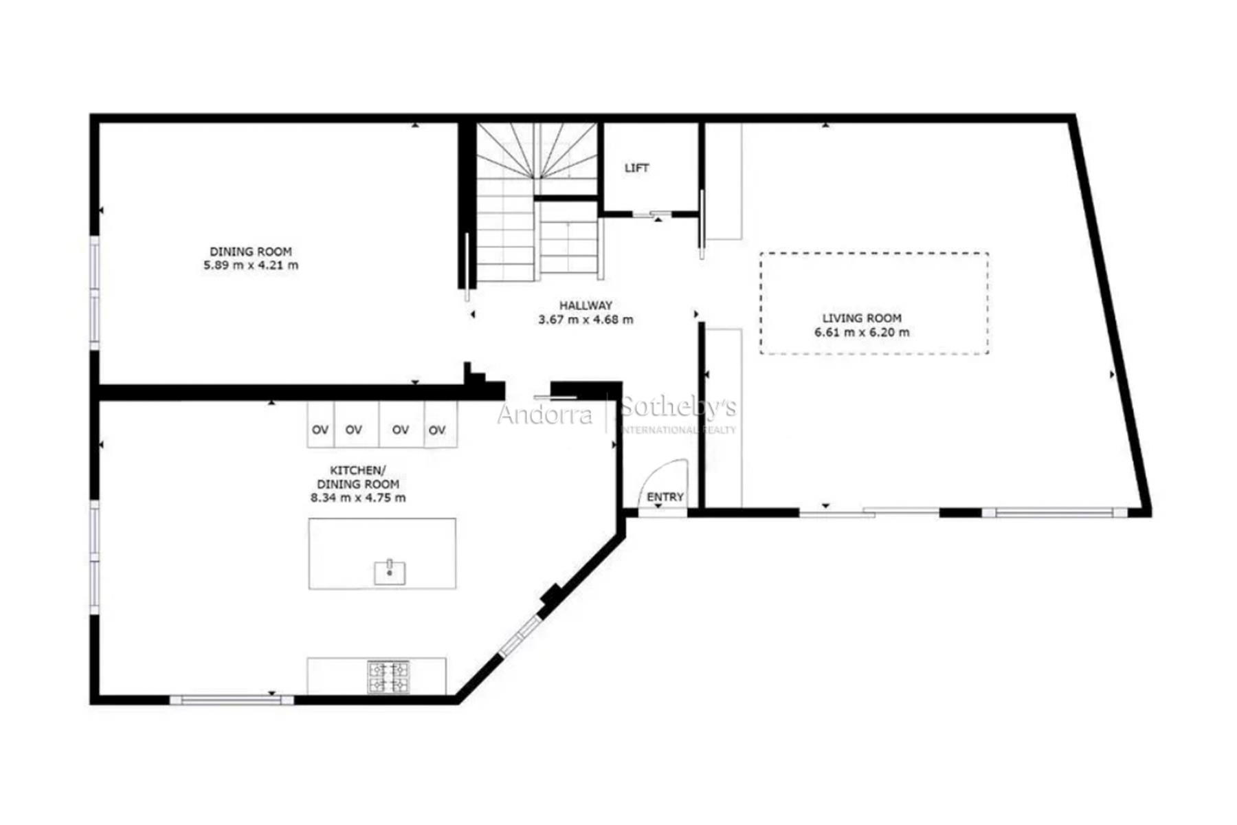
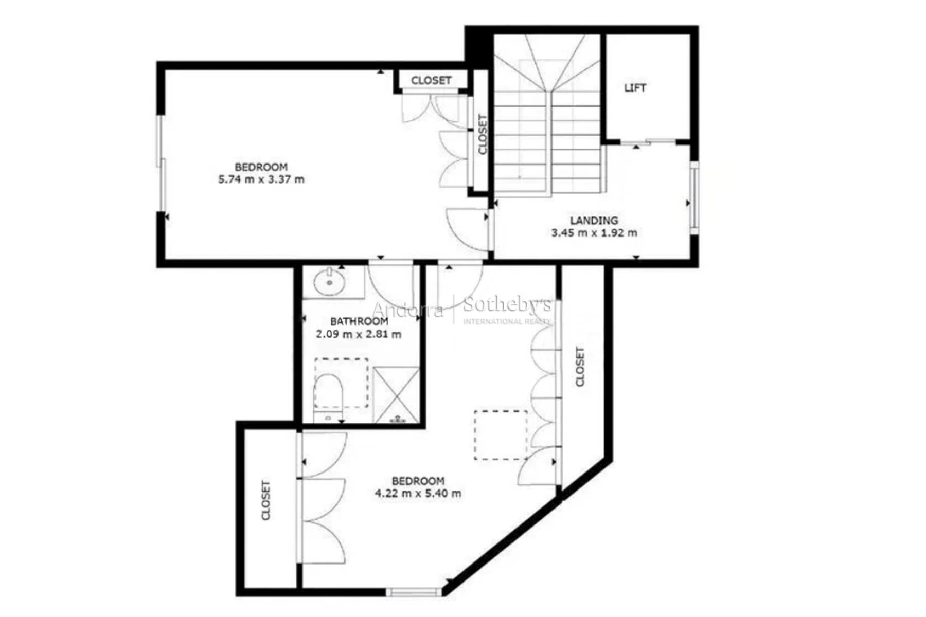
這棟獨特的500 平方米待售別墅位於馬薩納(La Massana) 中心,距離所有商店、服務設施和纜車僅幾分鐘步行路程,可通往帕爾-阿林薩爾(Pal-Arinsal) 區的Grandvalira 滑雪場,位於一個非常平靜的家庭住宅區並進行了完美的溝通。 房子分為4層,全部由電梯和內部木樓梯連接,並設有兩個露台花園區。 我們進入房子,發現有 2 個相互連接的車庫,可容納大約 5 或 6 輛車,還有一個供朋友和/或家人慶祝的房間。 房間裡有一個長而完整的廚房吧台,裡面有一張大木桌、一個壁爐,以及一個順著牆的無限長凳,營造出溫馨熟悉的氛圍。 在這個空間裡我們還發現了一個地窖。 車庫的另一部分設有禮賓衛生間,全部現代化,寬敞且設備齊全的洗衣房,配有水槽和水連接。 房間的其餘部分有一個大壁櫥用於存放物品。 房子入口處的車庫還有一個大廳,配有電梯、小更衣室和書房。 我們透過木樓梯到達一樓的大廳,那裡是日間活動區。 餐廳的門是滑動玻璃門。 該區域配備了起居室,配有大轉角沙發和一張供非正式用餐使用的小桌子,天花板是一扇可以用自動天花板窗簾打開和關閉的窗戶。 起居室旁有一間專門供貴族用餐的房間,可通往帶地暖的大露台、燒烤區,並可欣賞到拉馬薩納的壯麗景色,並可搭乘纜車前往帕爾。 廚房獨立、精緻、設備齊全,並配有最高級的電器。 在這個廚房裡,我們還設有一張桌子,供更多日常和家庭用餐。 您也可以從廚房進入露台。 二樓是夜間區域。 我們有第一間主人套房,配有大型更衣室和帶圓形水力按摩浴缸的大型全套浴室,水通過浴缸流出,形成瀑布效果,並且位於窗戶旁邊,您還可以通過窗戶進入浴室。陽台。 我們設有兩間雙人臥室,配有內置衣櫃,以及一間帶水力按摩淋浴的完整浴室。 房子的一樓專門用於第二間主人套房,即主套房。 它有一個非常寬敞的更衣室。 浴室配有淋浴和自然採光的天窗。 這間客房還設有享有美景的陽台。 整個酒店的裝飾非常豪華,其中包括房間內高貴的鑲木地板、浴室和廚房的石器、石板或合成地板、家庭自動化系統、帶氣室的雙層玻璃窗和一些可實現完美隔熱的三層玻璃-所有房間均採用隔音材料和全 LED 照明,可顯著減少對環境的影響和房屋的電費。

特征

  • 雙層玻璃
  • 內置衣櫃
  • 陽光明媚
  • 辦公室廚房
  • 露台
  • 阳台阳台
  • 电加热
  • 停车处
  • 庭园
  • 电梯
  • 山景
  • 附近的公共交通工具
  • 城市风光
  • 烟囱
  • 熱水
  • 有盖停车场
  • 洗衣店
  • 辦公室
  • 更衣室

能量等級 C

我们找到什么?

不到 5km

  • Escas 1.4 km
  • Sispony 2.0 km
  • Aldosa (L' ) (La Massana) 2.3 km
  • Erts 2.4 km
  • Ordino 2.6 km
  • Anyós 2.8 km
  • Sornàs 3.5 km
  • Xixerella 3.8 km
  • Ansalonga 4.1 km
  • Arinsal 4.1 km
  • La Cortinada 5.0 km

不到 10km

  • Arans 5.9 km
  • Pal 6.1 km
  • Molleres 6.9 km
  • Llorts 7.6 km
  • Santa Coloma 8.6 km
  • Encamp 8.8 km
  • Vila 8.9 km
  • Les Bons 8.9 km

距离首都

  • Escaldes-Engordany 5.5 km
  • Andorra la Vella 5.9 km

索取有关的更多信息 在馬薩納中心購買的獨家別墅

编号: 5874