Рефе.: 6413
Квартира на продажу в торговом центре Андорры-ла-Велья
Andorra - Andorra la Vella | квартира
Площадь
127 m2
общежития
3
ванная
2
цена
884.000 €
| 6413
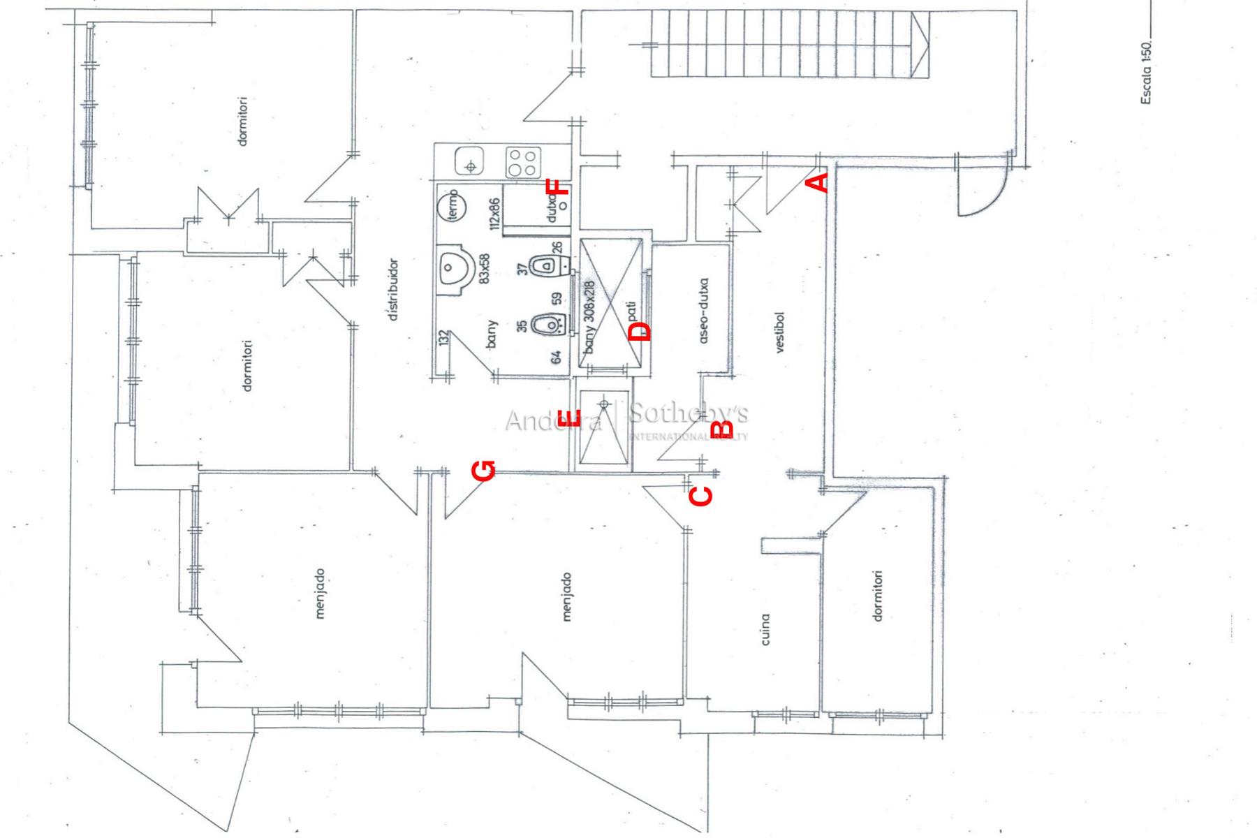
Расположенная в оживленном сердце торгового центра Андорры-ла-Велья, эта эксклюзивная квартира площадью 127,17 м² предлагает уникальную возможность жить в самом центральном и привилегированном районе города, окруженном лучшими магазинами и зонами отдыха. Несмотря на необходимость косметического ремонта, стратегическое расположение и потенциал преобразования делают эту недвижимость надежной и перспективной инвестицией. Планировка предусматривает элегантное распределение между гостиной-столовой и отдельной кухней, оформленными тремя отдельными зонами, с выходом на террасу, откуда открываются виды на одну из главных улиц города. В собственности три спальни: две просторные двухспальные комнаты и одна однокомнатная, а также две полноценные и независимые ванны — обеспечивающие комфорт и функциональность. Большой прихожий добавляет стилю и практичности. Дополнительно есть вместительный подсобный шкаф, обеспечивающий полную удобство и простор для хранения. Эта квартира — отличная возможность для инвесторов или тех, кто хочет адаптировать ее под свои потребности, превратив в практичное и роскошное жилье с особым очарованием, отражающим его исключительное расположение. Благодаря подходящему ремонту, эта квартира может стать выдающимся домом в одном из самых престижных районов Андорры.Особенности
- двойное стекло
- Встроенные шкафы
- Офисная кухня
- терраса
- лифт
- Вид на горы
- Общественный транспорт поблизости
- Вид на город
- Кладовая

Что мы ищем?
В менее 5km
- Molleres 2,4 km
- Santa Coloma 2,7 km
- Anyós 4,8 km
- Aixovall 5,0 km
В менее 10km
- Sispony 5,5 km
- La Massana 5,9 km
- Nagol 6,4 km
- Sant Julià de Lòria 6,5 km
- Escas 6,8 km
- Encamp 7,1 km
- Vila 7,4 km
- Les Bons 7,4 km
- Aixirivall 8,3 km
- Bixessarri 8,3 km
- Erts 8,5 km
- Ordino 8,7 km
- Aubinyà 9,1 km
- Sornàs 9,6 km
- Xixerella 9,9 km
В столице
- Escaldes-Engordany 1,6 km
Следующие шаги
Свяжитесь с нашей командой консультантов по недвижимости, чтобы узнать больше об этой эксклюзивной новостройке.
Запросить дополнительную информацию о Квартира на продажу в торговом центре Андорры-ла-Велья
Рефе.: 6413