编号: 6294

獨家 chalet 在 El Tarter 出售

Andorra - Tarter (El) | 别墅-楼房

359 m2
睡房
4
浴室
4
价格
2.895.000 €

索取有关的更多信息 獨家 chalet 在 El Tarter 出售

编号: 6294

| 6294

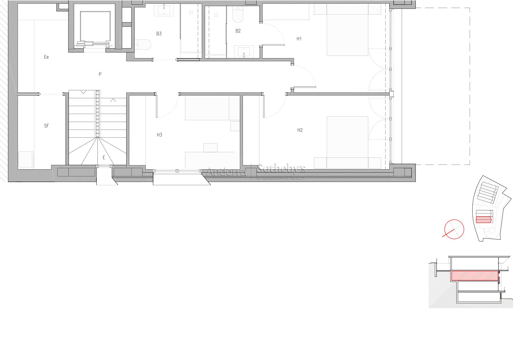
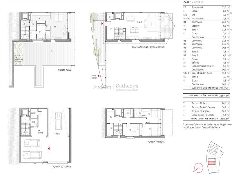
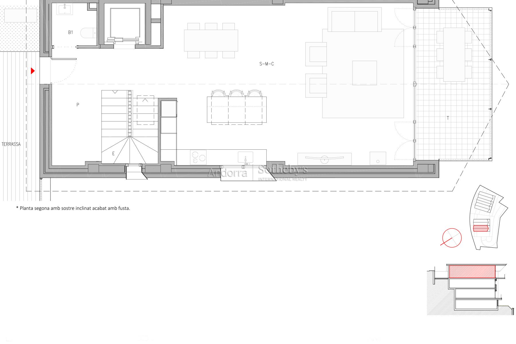
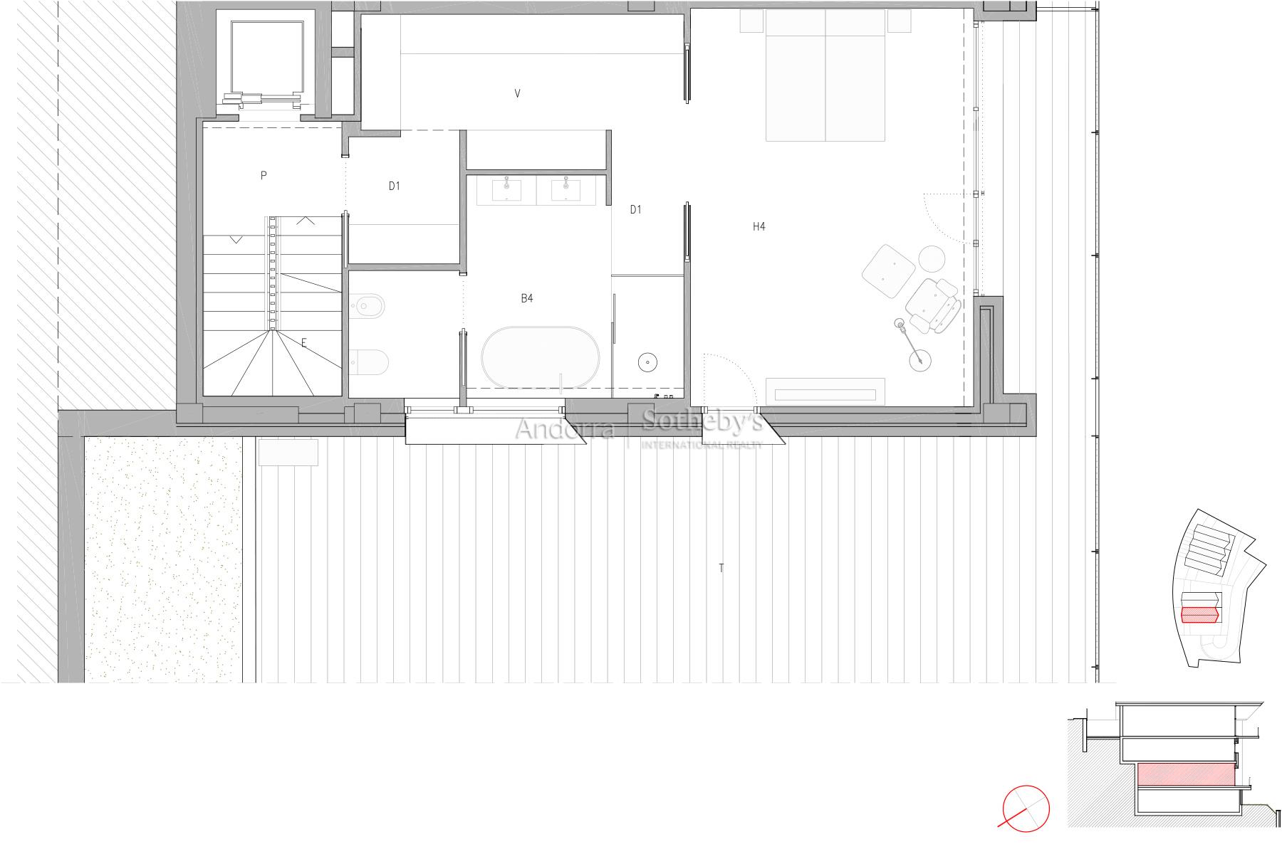
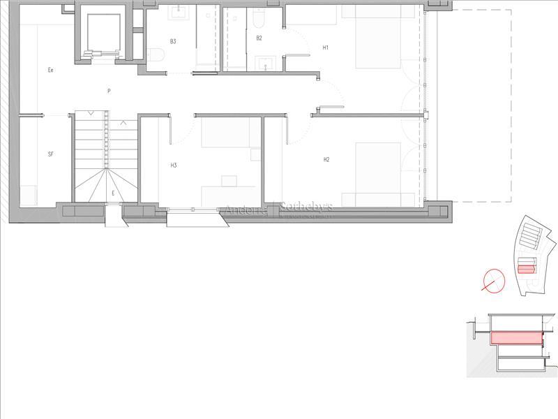
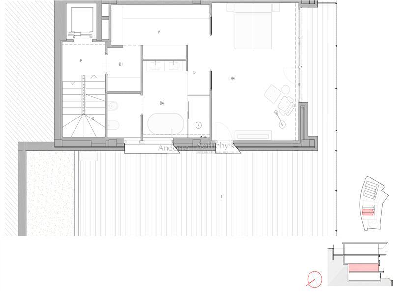
這座獨一無二的房子位於 La Pleta del Solà del Tarter,因其靠近 Grandvalira 滑雪道和優越的自然環境而成為最受歡迎的住宅區之一。 該物業的建築面積為 359.4 平方米,其中 283.7 平方米為可用生活空間,還有一個總面積為 140.8 平方米的寬敞戶外區域,分佈在幾個露台上:一個 84.1 平方米,另一個 34.2 平方米,還有一個 16 平方米的露台以及一個 6.5 平方米的外部樓梯。 這棟房子擁有四間臥室和四間浴室,提供寬敞、明亮且以舒適為設計理念的空間。日間區域包括一個帶開放式廚房的客廳,理想用於創建一個整合的功能性環境。它還擁有獨立的洗衣區和一個 55 平方米的封閉車庫,可容納多輛車輛。 該物業提供高品質的裝修和現代化的建築設計,旨在與周圍環境完美融合,並最大程度地利用自然光和景觀。

特征

  • 洗衣店
  • 輪椅升降機
  • 陽光明媚
  • 露台
  • 电加热
  • 山景
  • 附近的公共交通工具
  • 绿地
  • 熱水
  • 有盖停车场
  • 內置衣櫃
  • 儲存室
  • 停车处

能量等級 B

我们找到什么?

不到 5km

  • Ransol 1.3 km
  • Incles 1.3 km
  • Aldosa (L' ) (Canillo) 2.4 km
  • Soldeu 3.0 km

不到 10km

  • Canillo 5.4 km
  • Prats 6.6 km
  • Forn (El) 8.2 km

距离首都

  • Escaldes-Engordany 15.5 km
  • Andorra la Vella 16.6 km

索取有关的更多信息 獨家 chalet 在 El Tarter 出售

编号: 6294