Ref.: 6482

Apartamento de luxo para comprar na Av. Meritxell

Andorra - Andorra la Vella | Apartamento

Superfície
181 m2
quartos
3
banheiro
3
Preço
2.500.000 €

Solicite mais informações sobre Apartamento de luxo para comprar na Av. Meritxell

Ref.: 6482

| 6482

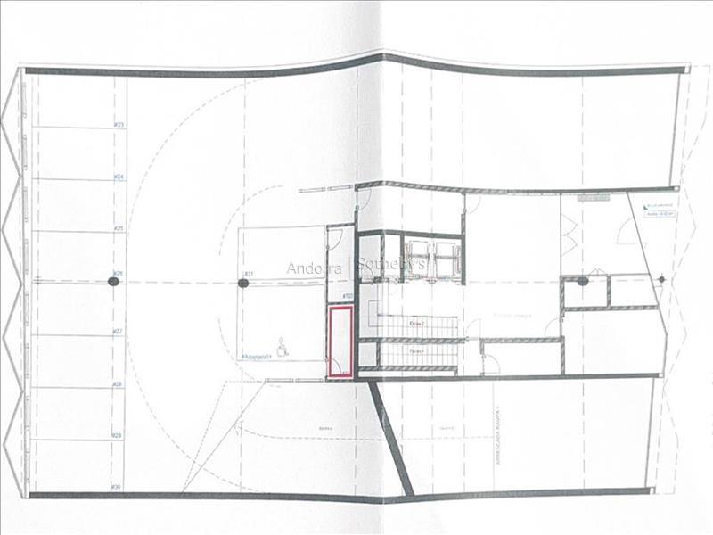
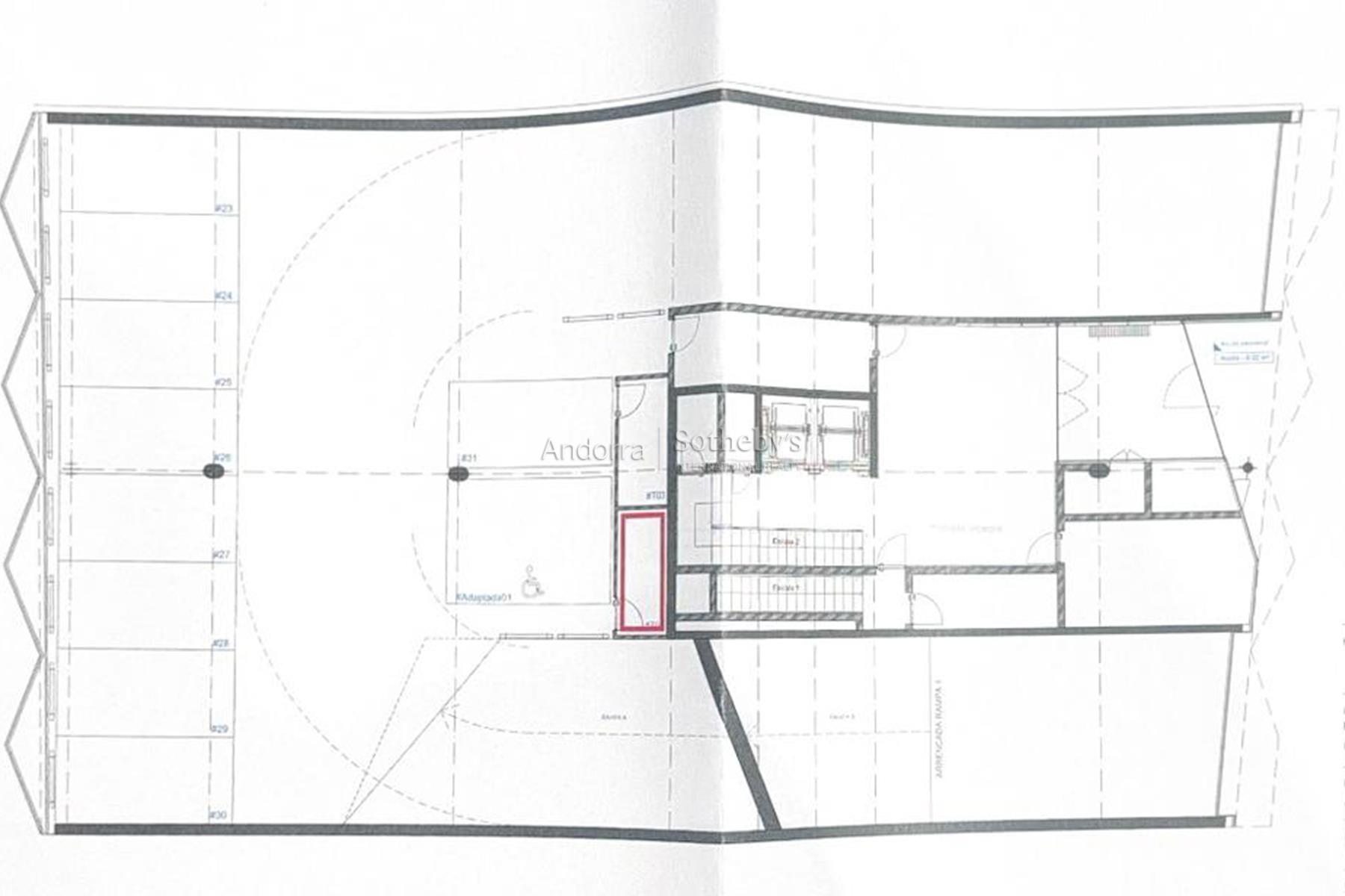
Apresentamos esta magnífica propriedade para compra, de 181 m², com aproximadamente 25 m² de terraço, situada numa das zonas mais privilegiadas do centro de Andorra la Vella. A área de estar dispõe de uma sala de estar e jantar espaçosa com uma cozinha aberta de design moderno, que favorece a luminosidade e a sensação de espaço. Da sala de estar, acessa-se ao agradável terraço com vistas, bem orientado para o sul, ideal para desfrutar de momentos de relaxamento ao ar livre. O apartamento tem três quartos amplos, incluindo uma suíte principal e duas suítes adicionais, cada uma com seu próprio banheiro completo e roupeiros, oferecendo máximo conforto e funcionalidade para o dia a dia. Além disso, conta com serviço de cortesia e uma lavandaria prática. A propriedade inclui duas vagas de estacionamento no mesmo edifício e um arrumo de aproximadamente 7 m², um valor acrescentado especialmente numa zona tão central. Localizado a apenas 2 minutos a pé de todos os serviços essenciais — comércio, restaurantes, centros médicos e transporte — esta residência é ideal para uso como residência habitual.

Características

  • Elevador acessível para cadeirantes
  • Armarios embutidos
  • Ensolarado
  • Terraço
  • Estacionamento
  • Elevador
  • Vista para a montanha
  • Transporte público próximo
  • Vista da cidade
  • Despensa
  • Estacionamento duplo
  • Estacionamento automático de portas
  • Estacionamento coberto

O que encontramos?

A menos de 5km

  • Molleres 2,4 km
  • Santa Coloma 2,7 km
  • Anyós 4,8 km
  • Aixovall 5,0 km

A menos de 10km

  • Sispony 5,5 km
  • La Massana 5,9 km
  • Nagol 6,4 km
  • Sant Julià de Lòria 6,5 km
  • Escas 6,8 km
  • Encamp 7,1 km
  • Vila 7,4 km
  • Les Bons 7,4 km
  • Aixirivall 8,3 km
  • Bixessarri 8,3 km
  • Erts 8,5 km
  • Ordino 8,7 km
  • Aubinyà 9,1 km
  • Sornàs 9,6 km
  • Xixerella 9,9 km

Na capital

  • Escaldes-Engordany 1,6 km

Seguintes passos

Entre em contato com nossa equipe de consultores imobiliários para saber mais sobre este empreendimento exclusivo.

Solicite mais informações sobre Apartamento de luxo para comprar na Av. Meritxell

Ref.: 6482